☆JR奈良線 東福寺駅まで徒歩約2分!
登録日/2018年05月19日 更新日/2025年12月11日 次回更新予定日/随時
お問い合わせ番号/ 8800
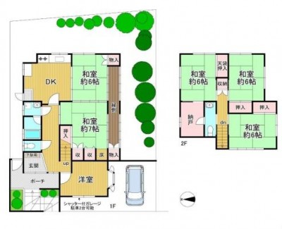
間取り
外観
その他
玄関
キッチン
キッチン
キッチン
玄関
玄関
収納
その他
収納
リビング
中古戸建
2,799万円
京都府京都市東山区本町14丁目257-6- 建物構造/階建
- 木造/2階建
- 築年月
- 1926年01月 / 築99年
- 最寄駅
-
- 京阪電気鉄道京阪線
- 東福寺駅徒歩1分
- 奈良線
- 東福寺駅徒歩1分
- 間取り/面積
-
- 間取り
- 1R
- 土地面積
- 49.61m2 / 15.00坪
- 延床面積
- 38.27m2 / 11.57坪
- 延床面積1F
- -
- 延床面積2F
- -
新価格オススメ
- 学校区
-
- 小学校区
- - 距離:-
- 中学校区
- - 距離:-
- 間取り詳細
-
階数 区分 広さ - 駐車場
-
- 駐車可能台数
- 無-
- 駐車場所
- -
- 分譲駐車場
- -
- 駐車料金
- -
- 税
- -
- タイプ
- -
- 公共設備
-
- ガス
- 都市ガス
- 水道
- 公営水道
- 汚水
- 公共下水
- 雑排水
- 公共下水
- 接道状況 他
-
- 向
- 接道なし
- 角地
- -
- 私道
-
- 私道
- -
- 持分
- -
- 面積(区分)
- -
- 面積
- -
- 面積(単位)
- -
- セットバック面積
-
- 状態
- セットバック無
- 幅
- -
- 面積
- -
- 現況
- 空家
- 引渡時期
- 相談
--- - 地目
- 宅地
- 地勢
- 平坦
- 用途地域
- 第一種住居地域
- - 建ぺい/容積率
- 60%/200%
- 都市計画
- 市街化区域
- 建築許可理由
- -
- 建築確認番号
- -
- リフォーム
- -
- - リノベーション
- -
- - 土地権利
-
- 権利
- 所有権
- 備考
- -
- 権利金
- -
- 再建築
- 再建築不可
- 国土法届出
- 不要
- その他制限事項
- -
備考:- - フラット利用
- -
- 手付金保証
- -
- 町会費
- --
- リボーン21
- -
- 備考
- -
- 取引態様
- 専属






